ABOUT
Work
ABOUT
Work
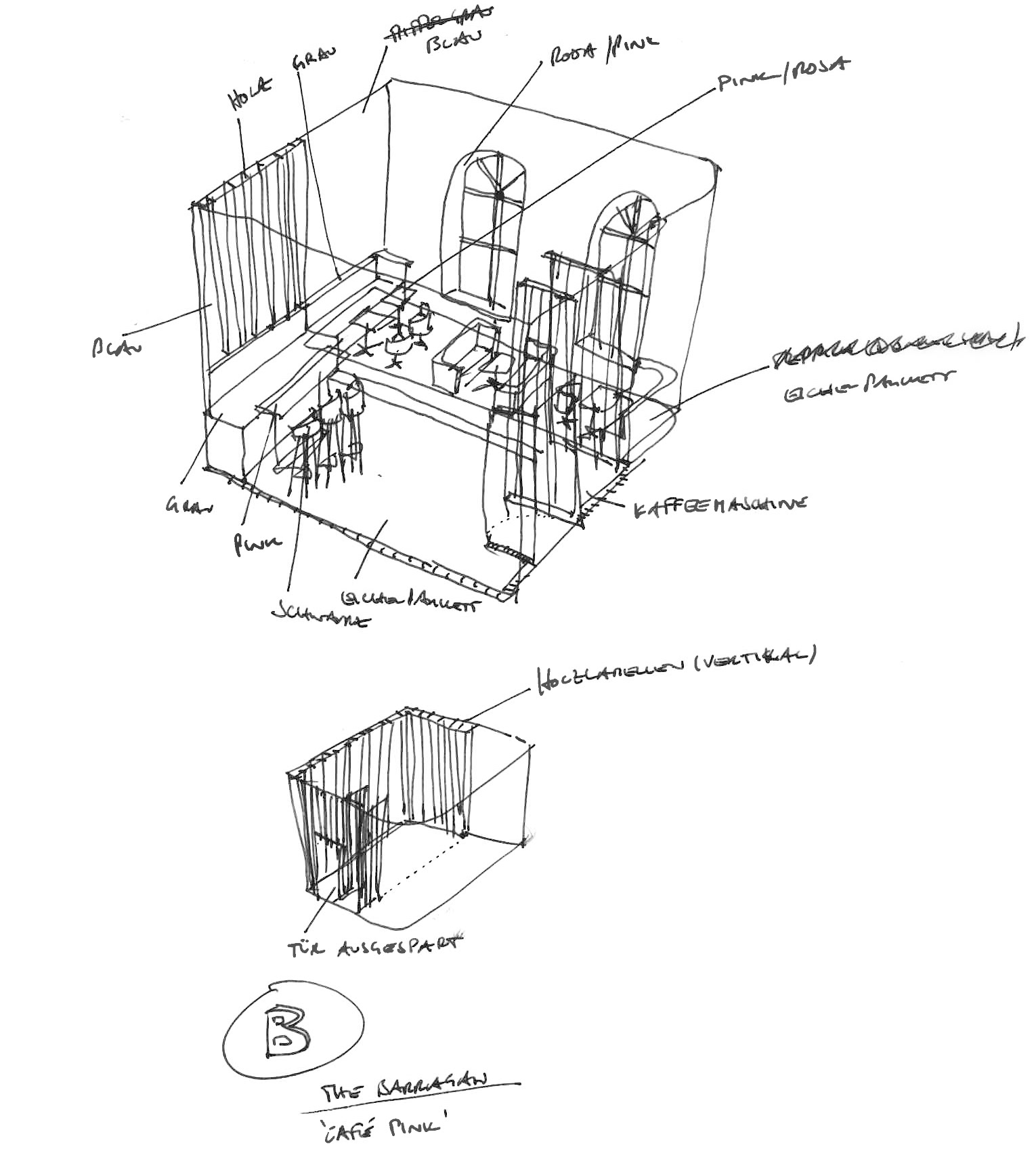
il Torino vs. the Barragan
black&white or pink
/ a new self-service café for an IT-company in Herten, D / LP 1-9 / completion 2020
/ Self-Service Café für ein IT-Unternehmen in Herten, D / LP 1-9 / Fertigstellung 2020
↑
Back to Top