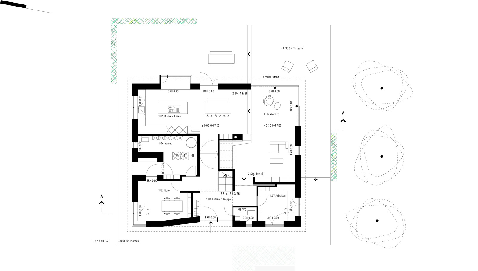
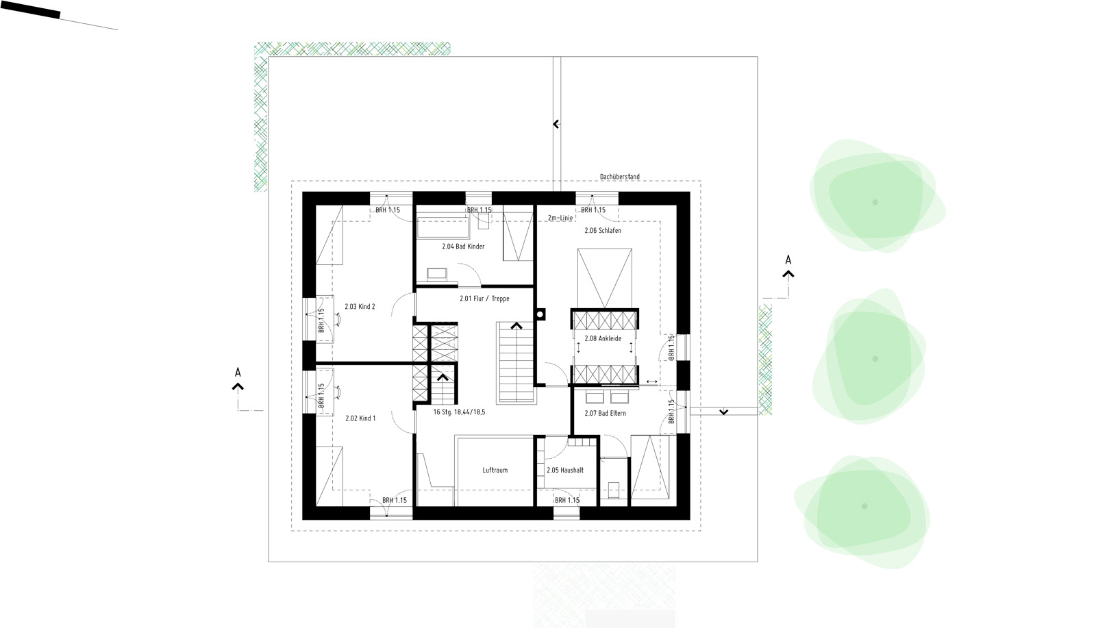
/ building of a new residence in Melle, D / area 250 sqm / LP 1-9 / completion 2018
/ Neubau eines Wohnhauses in Melle, D / Wohnfläche 250 qm / LP 1-9 / Fertigstellung 2018
a farmer's residence with a cut rooftop replaced by a skylight