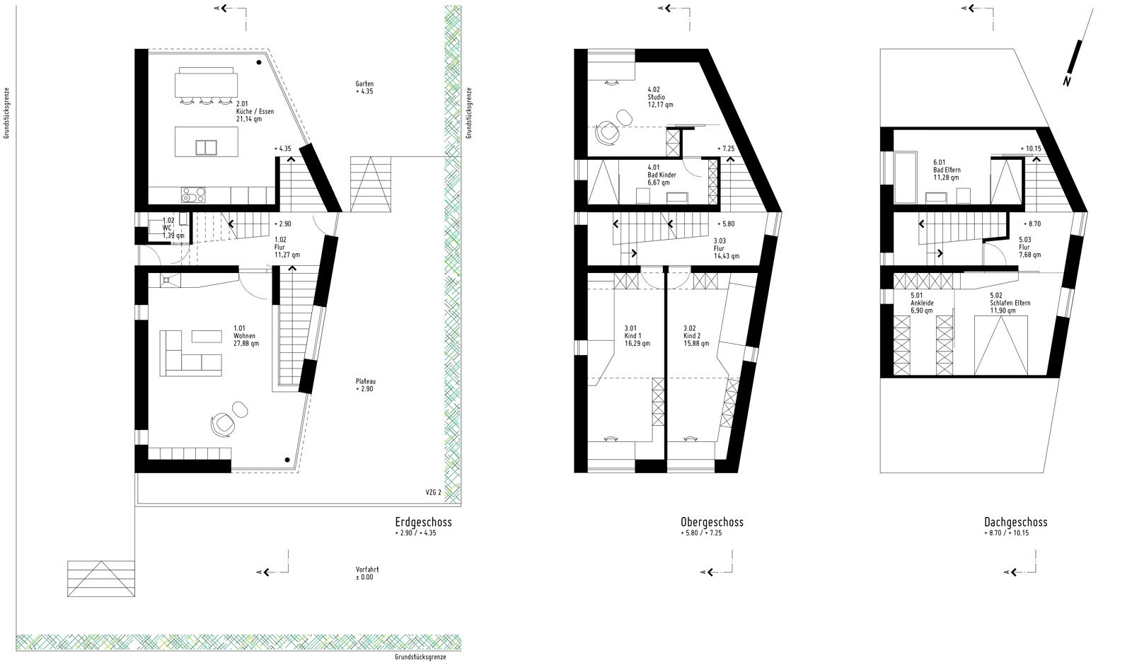
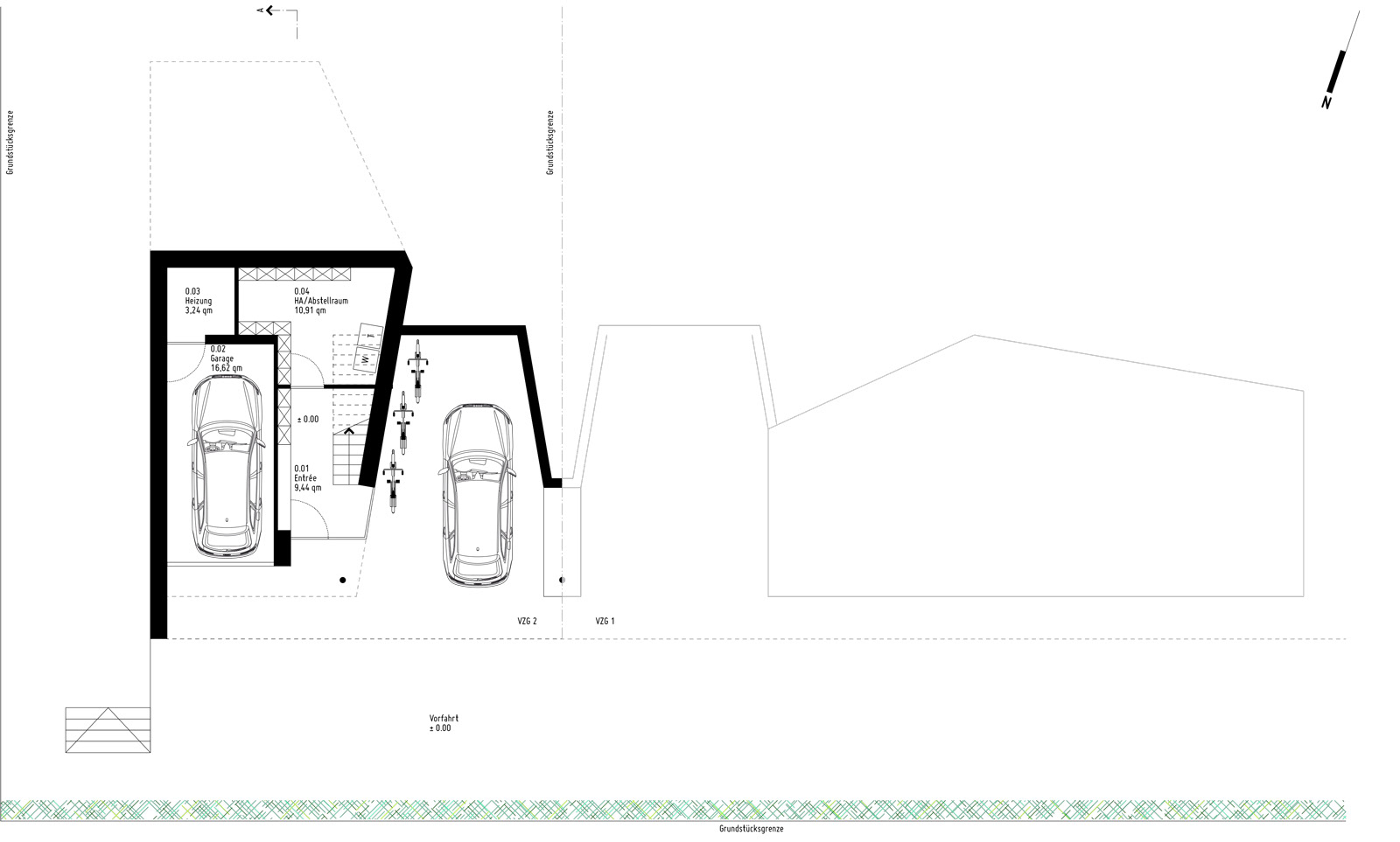
/ building of two new houses in Altenberge, D / area 2x205 sqm / LP 1-9 / completion 2019
/ Neubau von 2 Wohnhäusern in Altenberge, D / Wohnfläche 2x205 qm / LP 1-9 / Fertigstellung 2019
a small and high residence on a sloped site